Uthyres
Lediga bostäder
Nu har vi den stora glädjen att hyra ut ännu en bostad! Mulltorp, ett nyrenoverat torp känt sedan 1656 beläget i nära anslutning till Järvafältets naturreservat.
Visning
Visning sker den 5 november kl 12:00-13:00 samt den 7 november kl 16:00-17:00. Visning kommer endast att ske på utsatt tid. Vid förhinder att närvara finns möjlighet att skicka ombud. Vänligen meddela vilken visning du önskar komma på till kundförvaltare Philip Strådal: philip.stradal@skab.se
Inflyttningsdatum
Enligt överenskommelse och bostaden hyrs ut tillsvidare.
Krav på hyresgäst
Du som flyttar in på Mulltorp ska ha bostaden som permanentbostad och ska därför vara folkbokförd på adressen. Vid val av hyresgäst ligger stor vikt på vad som är "bäst för byggnaden med tillhörande mark", alltså förbehåller vi oss rätten till fri prövningsrätt vid tillsättande av hyresgäster. En del av bedömningen kommer att innefatta kreditprövning i form av kreditupplysning på blivande hyresgäster men även personliga egenskaper kommer att beaktas. Du som intressent kommer därför få chansen att skriva en kortare motivering om dig själv som hyresgäst av objektet.


Mulltorp 1, Sollentuna
Mulltorp är ett torp känt sedan 1656 då en skräddare Ambrosius bor här. Då låg torpet tunder Skillinge men kom senare att tillhöra Sollentunaholms säteri. Dagens byggnad är troligen från början av 1800-talet då den finns med på en karta från 1812. År 1836 bestod byggnaden av förstuga, stuga och kammare. Den var ca 7x5 m dvs ca 35 kvm stor och var 10 stockvarv hög. Taket täcktes av halm och torv och allt var i gott skick. Senare under 1800-talet blir Mulltorp statarbostad. En tillbyggnad görs och en andra statarbostad inreds. Kring sekelskiftet 1900 ändrades det igen, nu från två bostäder till en och Mulltorp blir en liten arrendegård. Den låga tillbyggnaden på södra gaveln gjordes 1979. Farstun som förmodligen tillkommit någon gång efter 1920-talet ersätts av en ny och större. Troligtvis görs detta på 1980-talet. Mulltorp har stått obebott sedan 2014.
FASTIGHETSUPPGIFTER
Adress
Mulltorp 1, Sollentuna
Fastighet
Del av Rotebro 2:1, Sollentuna
Byggår
1800-tal
Hyra
10 748/ kr/mån
Årlig hyresjustering om 3,5% fr.o.m. 1/1 2026.
Driftkostnader
Utöver hyran tillkommer värme, el, vatten, Internet (fiber finns indraget), hemförsäkring, sophämtning och sotning.
Uppvärmning
Bostaden värms upp med oljefyllda elradiatorer och vedeldning i köksspis.
Vatten och avlopp
Ansluten till kommunalt vatten och avlopp.
Ventilation
Självdrag.
Radon
Radon har tidigare uppmätts i inomhusmiljön varför en radonfläkt finns installerad i huset. Hyresgästen står för elförbrukningen men hyresvärden ansvarar för underhållet.
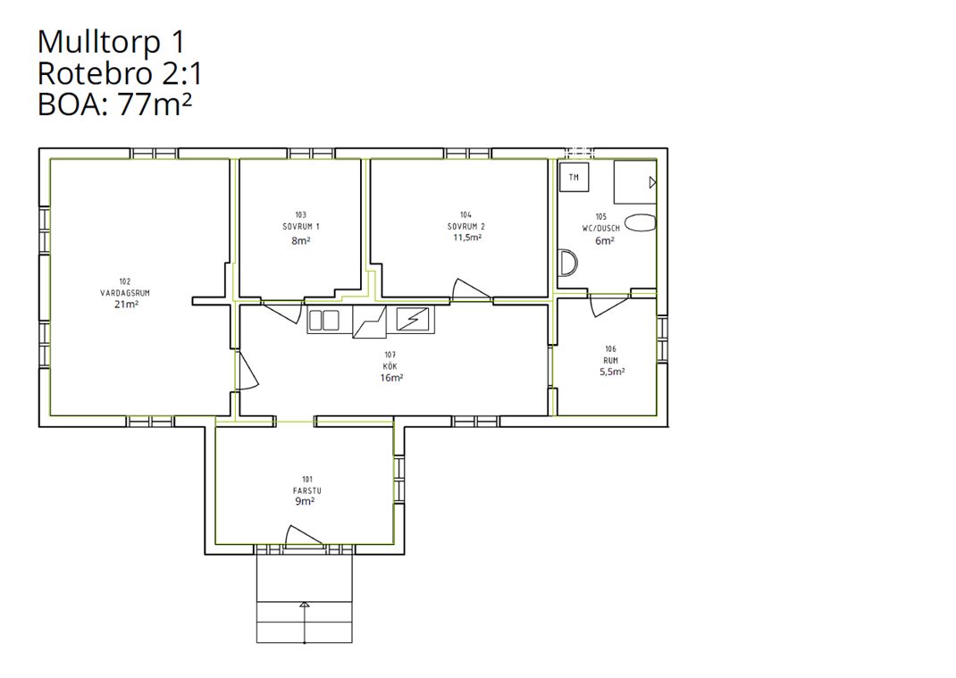
Boarea
Torp ca 77 kvm
Vedbod ca 11 kvm
Tomtarea
ca 1250 kvm, karta finns nedan. Åkermarken utanför tomten brukas av en lokal jordbruksentreprenör.
Energideklaration
Utförd med energiklass G och energiprestanda 206 kWh/m² och år. Hela energideklarationen finns att ladda ner på skab.se/uthyres
Brandskydd
Hyresgästen ansvarar för husets brandskydd med bland annat brandvarnare och släckutrustning.
Snöröjning
Hyresvärden ansvarar för snöröjning av kommunal väg utanför huset. Hyresgästen ansvarar för snöröjning inom tomtgränsen. Mer information om vilket ansvar hyresgästen har finns att tillgå i avtalets gränsdragningslista samt bilaga Särskilda bestämmelser.
Visning
Visning sker den 5 november kl 12:00-13:00 samt den 7 november kl Visning kommer endast att ske på utsatt tid. Vid förhinder att närvara finns möjlighet att skicka ombud. Mer information kommer.
Inflyttningsdatum
Enligt överenskommelse och bostaden hyrs ut tillsvidare.
Krav på hyresgäst
Du som flyttar in på Mulltorp ska ha bostaden som permanentbostad och ska därför vara folkbokförd på adressen. Vid val av hyresgäst ligger stor vikt på vad som är "bäst för byggnaden med tillhörande mark", alltså förbehåller vi oss rätten till fri prövningsrätt vid tillsättande av hyresgäster. En del av bedömningen kommer att innefatta kreditprövning i form av kreditupplysning på blivande hyresgäster men även personliga egenskaper kommer att beaktas. Du som intressent kommer därför få chansen att skriva en kortare motivering om dig själv som hyresgäst av objektet.
Kommunikationer
Mulltorp nås enklast med bil och plats för bil finns på tomten framför huset. Närmaste busshållplats är Bisslinge där busslinje 560 går. Närmsta pendeltågstation är Rotebro som nås med bil på ca 10 minuter.
Länk till karta: Mulltorp 1
Övrigt
Sollentuna Kommunfastigheter AB (SKAB) har i uppdrag att förvalta Sollentuna kommuns byggnader som finns på kommunens mark- och exploateringsfastigheter, i naturområden och för de byggnader som ingår i kulturmiljöplanen så att fastigheternas kulturvärden tillvaratas. SKAB strävar efter att etablera långsiktiga relationer till sina hyresgäster och önskar att hyresgästen ska se fastighetens kulturhistoriska värde som en tillgång och bidra till att bevara, utveckla och levandegöra dess kulturhistoriska värden.
Frågor
Frågor om objektet besvaras på visningsdagen och kontaktperson för uthyrningen är Philip Strådal som nås på 073-915 23 66, philip.stradal@skab.se
Bilder






Lediga lokaler

Du hittar våra butiks- och kontorslokaler hos objektvision.se
Lediga objekt
Just nu har vi inga lediga bostadsobjekt men så fort det kommer ut nya lägger vi ut dem här. Har du frågor så kontakta oss gärna!
Kontakta oss
Sollentuna Kommunfastigheter AB, SKAB, förvaltar och utvecklar i dag kulturfastigheter, skolor och förskolor, gruppboenden och idrottsanläggningar i Sollentuna kommun. Vi strävar ständigt för att skapa en attraktiv plats för elever, äldre och personer med funktionsnedsättning genom om-, till- och nybyggnationer.